$8.955.000
415 State Route 32, Woodbury, Orange County, NY, 10930, ABD
MLS numarası
984858
Mülk türü
Satılık konut, Müstakil ev
Arazi alanı
142 İngiliz dönümü (57,55 ha)
Yatak odaları
9
Banyo
4
Banyo
5
tuvaletler
1
Toplam oda sayısı
28
0 $
İlanı kaydet
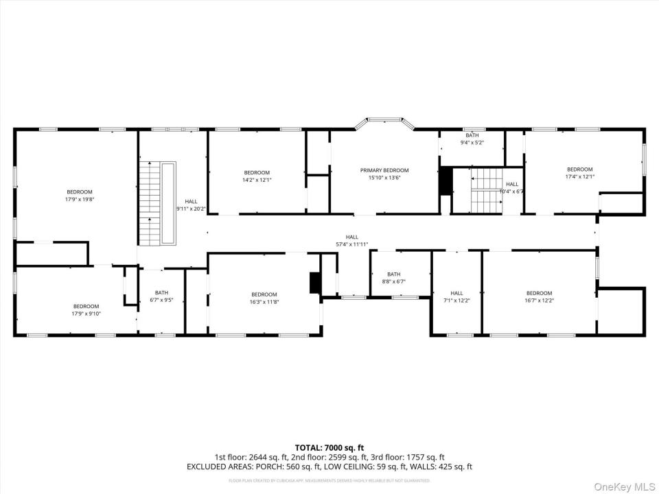
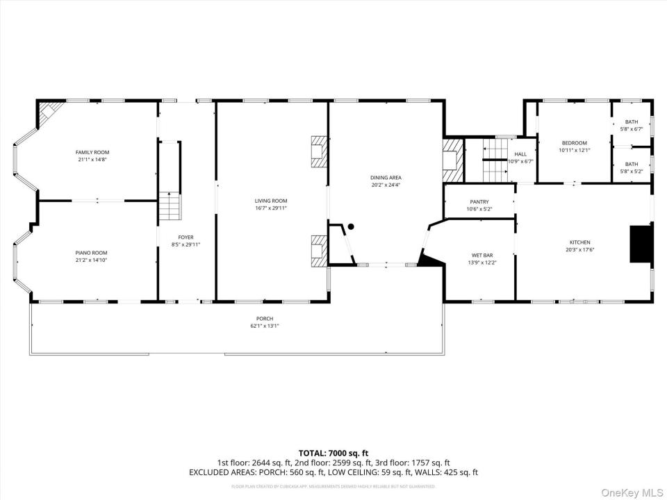
THE NIEMAND ESTATE – Village of Woodbury, NY – A rare and distinguished offering that seamlessly blends early Hudson Valley heritage with generational legacy and presents boundless opportunity for development, restoration or long-term preservation. Steeped in history and set across an extraordinary landscape with natural vistas while positioned in the heart of the Mid-Hudson Valley just one hour from NYC and only minutes to major highways, public transportation and popular attractions including Woodbury Common Premium Outlets, Storm King Art Center, Brotherhood Winery, Bear Mountain, Schunnemunk Mountain, Harriman State Park and thousands of acres hiking trails with ample opportunities for outdoor adventure. Set on 142 acres with a rare combination of open lawns, park-like woods, marshes and water access as well as historic pathways, this property could be restored as a grand estate, a multi-generational compound, or transformed into a boutique hotel, wellness retreat or event destination. The grand main residence with its approximate 7,000 sf was built in 1810, lavishly renovated in 1936 and is a substantial and architecturally layered marvel featuring a brilliant layout, expansive rooms with period detail, a plethora of bedrooms, and gracious entertaining or meeting spaces ready for renovation and revisioning. Complementing the main house is a modernized income-producing 1,476 sf rental house (circa 1910) with detached garage (2006), along with a classic carriage house (circa 1910 with 1,608 sf) and barn (circa 1890 w 1,920 sf), both offering significant potential with much needed restoration or repurposing. Situated near the cross-roads of the NY State Thruway and Route 17 West to the Catskills and only 4 miles to the Metro North Harriman station, this property includes municipal water and sewer and is surrounded by both residential and commercial properties offering the potential for possible future subdivision. The estate traces its roots back more than two centuries, establishing it as one of the most historically significant private holdings in the region. With connections to the decorative arts industry, the wallpaper trade and innovations in rotary printing technology, the property reflects a rich lineage tied to the advancement of contemporary design, craftsmanship, and mass production. Over generations, stewardship passed through notable other notable figures each contributing to the estate’s scale, prominence and amenities. A long, private approach creates a true sense of arrival, while the land itself presents exceptional flexibility for a variety of uses. Properties of this caliber and significance rarely come to market and this opportunity presents a range of possibilities for the enterprising buyer with foresight and imagination. Whether preserved as a private legacy compound, transformed into a boutique hospitality destination such as a spa or hotel, or held as a long-term investment with future development potential, the property’s scale and strategic location make it truly unique – a rare chance to steward a piece of Hudson Valley history while unlocking its next chapter.
Mülk ayrıntıları
İnşa edildiği yıl:
1810
Manzara tanımı:
Dağ manzarası, panoramik manzara
Mülk türü:
Konak
Yapı:
taş
Dış cephe tanımı:
Ahşap cephe kaplaması, tahta kaplama
Elektrikli aletler:
Buzdolabı, Bulaşık makinesi
Şömine sayısı:
4
Mülkün özellikleri:
Şömine, Veranda, bodrum katı, özel araba yolu
Outdoor Space Description:
Veranda
Zemin döşemesi:
Sert ahşap
Isıtma sistemi:
Basınçlı havalı, Buharlı, Fuel-oil
Arsa Tanımı:
temizlenmiş, Kat
Diğer binalar/yapılar:
Ağıl, Kulübe
Bodrum ve temel detayları:
Bahçeye çıkışlı bodrum katı, tamamlanmamış
Okul bilgileri
Lise bölgesi:
Monroe-Woodbury
İlkokul:
Central Valley Elementary School
Lise:
Monroe-Woodbury High School
Ortaokul:
Monroe-Woodbury Middle School

Bana ulaşın

  • Amy Coccia Wilhelm
  • Corcoran Baer & McIntosh
  • İş telefonu: 845-987-2000
  • Attribution Contact: 845-987-2000