$599,000
51 Sterling Road,Kent,Putnam County,NY,10512,미국
MLS 번호
923688
부동산 종류
거주용 매매, 단독 주택
대지의 크기
0.95 에이커 (0.38 헥타르)
침실
3
화장실의 갯수
2
욕실
3
반 화장실
1
총 방의 개수
9
평방미터당 판매가
0 $
리스팅 저장
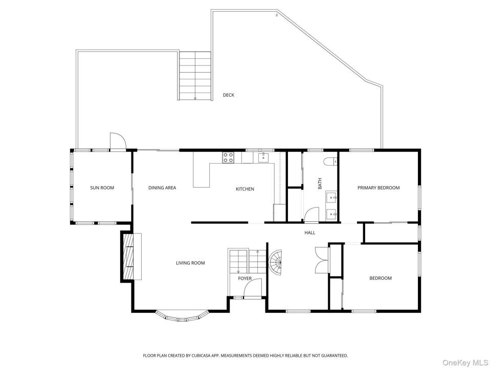
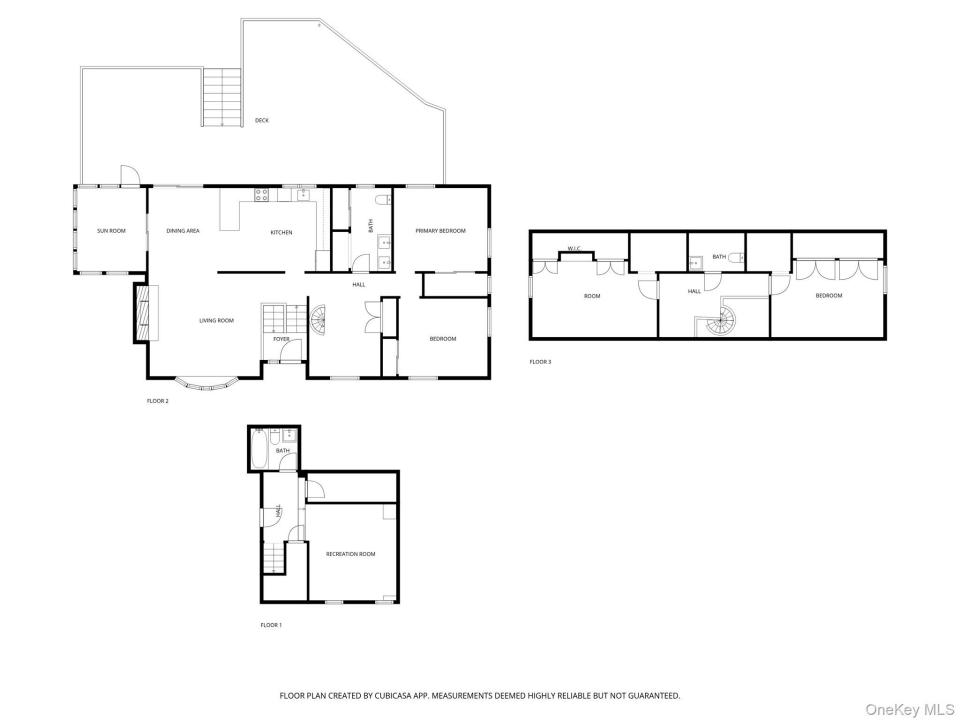
Experience tranquil Kent living in this updated and versatile 3 bedroom plus den, 2.5 bathroom raised ranch. Designed for flexible modern living, this home features an open concept floor plan with hardwood floors and a cozy wood burning fireplace. The kitchen is equipped with stainless steel appliances, quartz countertops, and classic shaker cabinetry. For ultimate convenience, the main level includes the primary bedroom and a dedicated laundry area. A unique spiral staircase leads to the third bedroom and a bright bonus room upstairs. Relax outdoors on the expansive deck or enjoy the quiet serenity of the screened-in porch overlooking peaceful woods. The finished walk-out basement includes a full bath, making it ideal for a private guest suite, home office, or family room. Recent upgrades, including a new roof and heating system, offer immediate peace of mind. The location is perfect for outdoor enthusiasts, offering proximity to extensive hiking trails and area lakes for swimming and boating. Equipped with a 1 car attached garage.
부동산의 자세한 사항
건축 년도:
1987
스타일:
입구가 높은 랜치 스타일
외장 설명:
비닐 사이딩
설비 기구:
냉장고,세척기,건조기
벽난로 수:
1
부동산 특징:
페치카,지하실,드라이브웨이,주차장
전기, 물세 등:
오수 정화조,전기 - 대지 내에
난방 시스템:
기름 태양열
통신설비:
케이블 이용 가능
지하층 및 기초공사:
지하실에서 외부로 나갈 수 있는 구조,일부 마무리됨
주차장 / 차고
차고 공간:
1
학교에 관한 정보
고등학교 학군:
Carmel
초등학교:
Kent Elementary
고등학교:
Carmel High School
중학교:
George Fischer Middle School

저에게 연락하십시오

  • Olivia E. Diaz
  • eXp Realty
  • 사무실: 888-276-0630
  • Attribution Contact: 888-276-0630